09.02.2026

Дизайн кухни в сталинке: идеи для гармоничного и функционального пространства

Содержание

  1. Что определяет дизайн кухни в сталинке?
  2. Самые эффективные дизайнерские концепции
  3. Атмосферообразующие детали
  4. Примеры дизайна кухни в сталинке по площадям от Domeo
  5. В заключение
Классическая кухня с нотками американского стиля и текстурным акцентом

Сталинка — это диалог эпох, где благородная архитектура встречает современную функциональность. Высокие потолки и прочные стены задают тон, но часто требуют особых решений для компактного пространства.
Как сохранить исторический шарм, наполнив кухню актуальным комфортом?
В этой статье разберем ключевые принципы гармоничного дизайна, который превратит кухню в сталинской квартире в стильное и удобное пространство.

Что определяет дизайн кухни в сталинке?

Высокие потолки и скромные метры

Скромная площадь кухни в сталинке (часто 6-8 м²) с лихвой компенсируется высотой потолков от 3 метров. Для угловой планировки эта мощная вертикаль становится ключевой — она формирует основное восприятие пространства — не тесного, а устремлённого вверх.
Она же диктует первое и главное дизайн-решение: активное использование вертикали через высокие шкафы, удлинённый декор и продуманное освещение.

Белоснежная кухня с лаконичными фасадами и тонкой фрезеровкой

Работа с нишами, окном и коммуникациями

Типичные особенности планировки — смещённое окно, глухие зоны и стояки, мусоропровод — можно превратить в дизайнерские возможности. Смещённый проём создаёт основу для асимметричной, но гармоничной расстановки мебели.
Глухие участки стен идеально подходят для встроенных систем хранения до потолка, а технические короба легко обыграть, превратив их в основу для открытых полок или акцентного элемента. Так, от грамотной организации пола до использования высоты, каждый нюанс планировки работает на общий замысел.

Светлый дизайн в матовом серо-лавандовом оттенке с благородными акцентами

Состояние базовых элементов

Перед началом отделки необходим аудит исходных материалов: проверьте состояние паркета под старым покрытием, наличие лепнины и геометрию стен.
Исходя из этого, примите решение — бережная реставрация подлинных элементов, стилизация, сохраняющая дух эпохи, или полное обновление, если восстановление невозможно.

Кухня с насыщенным вишневым оттенком, переходящим в мраморные прожилки фартука и текстурой теплого дерева

Самые эффективные дизайнерские концепции

- Неоклассика

Создать стилистически цельный интерьер можно, используя архитектурный код эпохи. Интегрируйте лепные молдинги в дизайн фасадов или карнизов. Введите геометричные узоры через плитку фартука или декор.
Выбор благородных материалов — дерева, латуни, матовой керамики — станет основой аутентичной и солидной атмосферы.

- Современный минимализм

Современный подход к дизайну сталинской кухни строится на контрасте. Лаконичные фасады и скрытые системы хранения подчёркивают, а не перегружают историческую архитектуру. При этом высокие потолки многократно усиливают эффект от этой лаконичности, создавая ощущение идеально организованного и наполненного воздухом пространства.

- Лофт

Светлая палитра визуально расширяет пространство кухни, а уют создается через натуральные материалы. Фактурная штукатурка, дерево или открытый кирпич на акцентной стене добавляют тепло и напрямую перекликаются с аутентичным духом сталинского дома, плавно переводя его атмосферу в современную гостиную.

Атмосферообразующие детали

  • Многоуровневое освещение для высокого помещения
    Идеальный свет — это система из трёх типов: общего, рабочего и декоративного. Такая комбинация чётко зонирует пространство и наполняет его объём уютом, «очеловечивая» высокие стены и создавая маленькую, комфортную атмосферу.
  • Цветовая палитра
    Классика для сталинок — белый, пастель и тёмные акценты. Тренды добавляют приглушённые насыщенные цвета. Светлые тона визуально расширяют пространство, а вертикальные тёмные акценты подчёркивают высоту потолков.
  • Детали, которые создают стиль
    Стиль завершают детали: фурнитура и выключатели в духе концепции, а также декор — картины, текстиль и растения. Эти элементы добавляют индивидуальность, превращая отремонтированное пространство в живой и цельный интерьер.
Кухня в светлых тонах с интересной идеей освещения и ярким акцентом на стулья

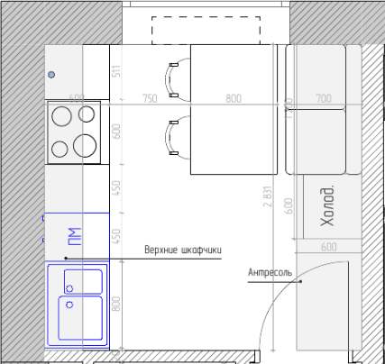
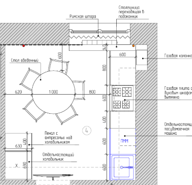
Примеры дизайна кухни в сталинке по площадям от Domeo

Кухня 6 кв.м с синим гарнитуром и сочетанием серого и древесного оттенка

Кухня 7 кв.м с барной стойкой и светлыми фасадами

Кухня 8 кв.м с ярким сочетанием вишневого и черного цвета с фартуком под мрамор

Кухня 9 кв.м в серо-коричневых оттенках с выходом на балкон

Кухня 10 кв.м в сером цвете с кирпичной стеной и фартуком из белой плитки

В заключение

Проектирование такого пространства — всегда диалог с архитектурой. Задача в том, чтобы эргономика и технологии органично звучали в историческом интерьере, подчеркивая, а не перебивая его монументальность и размах.
В итоге рождается современное, но небезликое помещение, где каждый размер выверен. Оно сохраняет благородство пропорций и приобретает практичность. Так достигается главное — создание интерьера, который уважает прошлое, но живет настоящим.

Услуги Domeo по ремонту квартир в сталинках

Ищете компанию для выполнения ремонта?

Рассчитайте стоимость Вашего ремонта
и получите консультацию от нашего специалиста!
Расчет сметы и консультация бесплатные и ни к чему Вас не обязывают